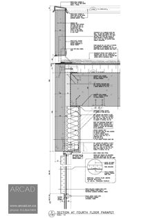
We have included a quick view of our selected details along with an adobe pdf version which, when printed, will show the proper detail and line weights. Download the latest Acrobat Reader for best image quality.